Eladó 105 m2-es, belső kétszintes társasházi téglaépítésű lakás Vácon.
109 900 000 Ft
Leírás
Eladó 105 m2-es, belső kétszintes társasházi téglaépítésű lakás Vácon a Cházár András utcában.
Dunakanyar ékkövében, a közel ezeréves múltú Vác városának történelmi kebelén, ott, hol a nagy folyam, a Duna csendes méltósággal hömpölyög, kínáltatik eladásra egy nemes hajlék, mely egyszerre hordozza a polgári időtlenség báját és a modernkor kényelmét.
A patinás Cházár András utcában, Vác ódon belvárosának szívében emelkedik ama négylakásos, tisztes társasház, mely 1982 esztendejében építtetett, s külső falazatát 15 centiméteres hőszigetelés oltalmazza a tél zordságától s a nyár hevének túlzásaitól.
A lépcsőház tiszta és rendezett, lakóközössége konszolidált; ablakai háromrétegű üvegezéssel bocsátják be a természet áldott fényét, miközben őrzik a benső csendet.
A második emeleten lelhető fel e 105 négyzetméteres, belső kétszintes, téglaépítésű lakás, mely saját tárolóval, utcafrontról nyíló, árammal ellátott garázzsal és fenséges panorámájú tetőterasszal ékes.
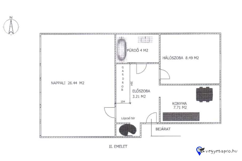
Az alsó szinten előszoba fogad beépített szekrénnyel; innen nyílik a délnyugati tájolású, tágas, 26, 44 m²-s parkettás nappali, melyet klíma hűsít a nyár idején.
Külön álló, 7, 71 m²- s bútorozott konyha szolgálja a ház asszonyának vagy urának kedvét.
Található továbbá kádas fürdőszoba bojlerrel, külön illemhely, s egy 8, 49 m²- s, világos, parkettázott hálószoba.
A felső szintre acélcsővázas, tölgyfokokkal ékesített csigalépcső vezet. Itt lépcsőtér (2, 68 m²), közlekedő (3, 21 m²), tusolós fürdő WC- el (4, 13 m²), továbbá két külön nyíló, parkettázott szoba (15, 11 m² és 10 m²) várja új lakóit.
A korona pedig a 12, 18 m²- s panorámás terasz, ahonnan a város háztetőire és a belső udvar nyugalmára tekinthetünk alá – méltó helyszíne reggeli kávénak vagy alkonyi elmélkedésnek.
A fűtésről gázcirkó, meleg vízről villanybojler éjszakai árammal gondoskodik, a nyári túlmelegedés ellen klímaberendezések őrködnek.
Közös költség: 14. 180 Ft havonta.
Az utcai bejárat mellett Hörmann motoros kapuval ellátott garázs szolgálja a kényelmet; a lépcsőházból nyíló tároló (0, 74 m²) további praktikus teret biztosít.
A lakás egy helyrajzi számon szerepel, a garázs és a tároló külön nem értékesíthető.
Az alapító okirat a tulajdoni hányadokat egyértelműen rögzíti.
Az ingatlan tehermentes; igénybe vehetők állami támogatások és kedvezményes hitelek (Start Otthon 3%, CSOK, Babaváró).
A téglalakás korának megfelelő állapotú, a leendő tulajdonos saját ízlése szerint alakíthatja át.
Elhelyezkedése kivételes: néhány perces sétával elérhetők élelmiszerboltok, zöldséges, hentes, pékség, bölcsőde, óvoda, iskola, orvosi rendelő, gyógyszertár, parkok, a Duna-part, buszmegálló és vasútállomás.
Irányár (garázzsal és tárolóval együtt): 109. 900. 000 Ft
Ha e nemes falak között képzeli el jövendő életét, várom megtisztelő hívását!
+36 70 558 1160
Találja meg otthonát Vác történelmi ölelésében, hol múlt és jelen méltósággal fonódik egybe.
Tel: +36705581160
Dunakanyar ékkövében, a közel ezeréves múltú Vác városának történelmi kebelén, ott, hol a nagy folyam, a Duna csendes méltósággal hömpölyög, kínáltatik eladásra egy nemes hajlék, mely egyszerre hordozza a polgári időtlenség báját és a modernkor kényelmét.
A patinás Cházár András utcában, Vác ódon belvárosának szívében emelkedik ama négylakásos, tisztes társasház, mely 1982 esztendejében építtetett, s külső falazatát 15 centiméteres hőszigetelés oltalmazza a tél zordságától s a nyár hevének túlzásaitól.
A lépcsőház tiszta és rendezett, lakóközössége konszolidált; ablakai háromrétegű üvegezéssel bocsátják be a természet áldott fényét, miközben őrzik a benső csendet.
A második emeleten lelhető fel e 105 négyzetméteres, belső kétszintes, téglaépítésű lakás, mely saját tárolóval, utcafrontról nyíló, árammal ellátott garázzsal és fenséges panorámájú tetőterasszal ékes.
Az alsó szinten előszoba fogad beépített szekrénnyel; innen nyílik a délnyugati tájolású, tágas, 26, 44 m²-s parkettás nappali, melyet klíma hűsít a nyár idején.
Külön álló, 7, 71 m²- s bútorozott konyha szolgálja a ház asszonyának vagy urának kedvét.
Található továbbá kádas fürdőszoba bojlerrel, külön illemhely, s egy 8, 49 m²- s, világos, parkettázott hálószoba.
A felső szintre acélcsővázas, tölgyfokokkal ékesített csigalépcső vezet. Itt lépcsőtér (2, 68 m²), közlekedő (3, 21 m²), tusolós fürdő WC- el (4, 13 m²), továbbá két külön nyíló, parkettázott szoba (15, 11 m² és 10 m²) várja új lakóit.
A korona pedig a 12, 18 m²- s panorámás terasz, ahonnan a város háztetőire és a belső udvar nyugalmára tekinthetünk alá – méltó helyszíne reggeli kávénak vagy alkonyi elmélkedésnek.
A fűtésről gázcirkó, meleg vízről villanybojler éjszakai árammal gondoskodik, a nyári túlmelegedés ellen klímaberendezések őrködnek.
Közös költség: 14. 180 Ft havonta.
Az utcai bejárat mellett Hörmann motoros kapuval ellátott garázs szolgálja a kényelmet; a lépcsőházból nyíló tároló (0, 74 m²) további praktikus teret biztosít.
A lakás egy helyrajzi számon szerepel, a garázs és a tároló külön nem értékesíthető.
Az alapító okirat a tulajdoni hányadokat egyértelműen rögzíti.
Az ingatlan tehermentes; igénybe vehetők állami támogatások és kedvezményes hitelek (Start Otthon 3%, CSOK, Babaváró).
A téglalakás korának megfelelő állapotú, a leendő tulajdonos saját ízlése szerint alakíthatja át.
Elhelyezkedése kivételes: néhány perces sétával elérhetők élelmiszerboltok, zöldséges, hentes, pékség, bölcsőde, óvoda, iskola, orvosi rendelő, gyógyszertár, parkok, a Duna-part, buszmegálló és vasútállomás.
Irányár (garázzsal és tárolóval együtt): 109. 900. 000 Ft
Ha e nemes falak között képzeli el jövendő életét, várom megtisztelő hívását!
+36 70 558 1160
Találja meg otthonát Vác történelmi ölelésében, hol múlt és jelen méltósággal fonódik egybe.
Tel: +36705581160
Specifikációk
| Erkély, terasz | Van |
| Belmagasság | 2.5 m felett |
| Bútorozott | Részben |
| Emelet | 2 |
| Fűtés típusa | gáz-cirkó |
| Havi közösköltség | 14180 Ft / hó |
| Lift | Nincs |
| Méret | 105 nm2 |
| Parkolás | Garázsban |
| Szobák száma | 4 |
| Tulajdonjog / Bérleti jog | Tulajdonjog |